西脇市嶋(日本へそ公園駅)店舗用地印刷する
おすすめポイント国道沿いです!地目も現況も農地ですが、第3種農地かつ西脇市嶋地区空家等活用促進特別区域に該当するため様々な活用の可能性、幅があります!
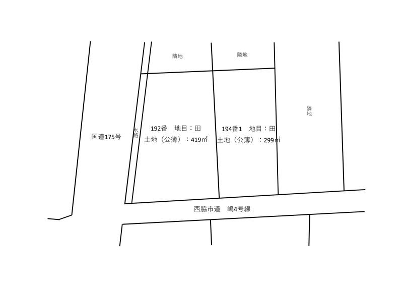
750万円 坪単価:3.46万円/坪 | 土地面積718㎡ 坪数217.19坪 私道負担面積 |
土地権利所有権 引渡条件現況渡し 最適用途店舗用地 | 建ぺい率60% 容積率200% |
所在地西脇市嶋 | |
交通
| |
おすすめポイント国道沿いです!地目も現況も農地ですが、第3種農地かつ西脇市嶋地区空家等活用促進特別区域に該当するため様々な活用の可能性、幅があります!
750万円 坪単価:3.46万円/坪 | 土地面積718㎡ 坪数217.19坪 私道負担面積 |
土地権利所有権 引渡条件現況渡し 最適用途店舗用地 | 建ぺい率60% 容積率200% |
所在地西脇市嶋 | |
交通
| |
JR加古川線 日本へそ公園駅 徒歩17分
JR加古川線 比延駅 徒歩24分
※地図上に表示される家マークのアイコンは付近住所に所在することを表すものであり、実際の物件所在地とは異なる場合がございます。必ず不動産会社におたずねください。

取引態様:専任媒介
兵庫県知事免許(1) 第0750204号
所属協会:(公社)全日本不動産協会
公正取引協議会:不動産公正取引協議会
不動産でお困りの際はお気軽にご相談ください
スマートフォンで
この不動産会社の情報を
ご覧になれます
※携帯電話ではご覧いただけません。
おすすめポイント国道沿いです!地目も現況も農地ですが、第3種農地かつ西脇市嶋地区空家等活用促進特別区域に該当するため様々な活用の可能性、幅があります!
1 / 6
JR加古川線 日本へそ公園駅 徒歩17分
JR加古川線 比延駅 徒歩24分
(0795-86-8909)