伊勢崎市赤堀鹿島町(国定駅)住宅用地印刷する
おすすめポイント
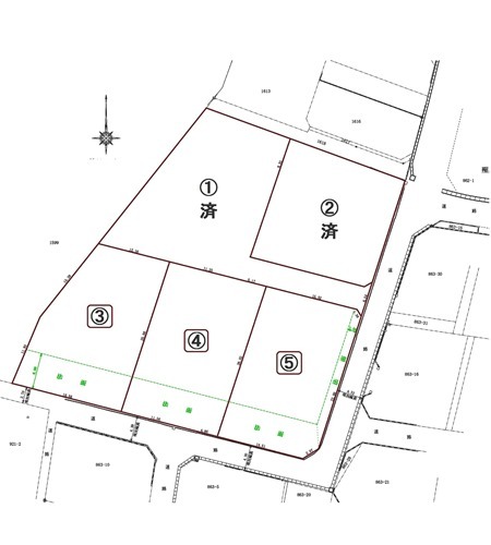
790万円 坪単価:6.18万円/坪 | 土地面積423.26㎡ 坪数128.03坪 私道負担面積なし |
|
土地権利所有権 引渡条件現況渡し 最適用途住宅用地 | 建ぺい率70% 容積率200% |
|
所在地伊勢崎市赤堀鹿島町 |
|
| 交通 |
|
最新の空室状況や詳しい情報はこちらから!
お問合せ(無料)【お問合せ先】 スリーワン・エステート
スマートフォンでこの物件の情報をご覧になれます
※携帯電話ではご覧いただけません。
- 交通
JR両毛線 国定駅 徒歩35分
- 所在地
- 伊勢崎市赤堀鹿島町
- 物件種目
- 売買
- 価格
- 790万円
- 敷金 / 保証金
- なし /
- 坪単価
- 6.18万円/坪
- 借地期間
- 地代(月額)
- 権利金
- その他一時金
- 維持費等
- 土地面積
- 423.26㎡
- 坪数
- 128.03坪
- 私道負担面積
- なし
- 接道状況
- 南向き4m 公道 接面16.92m
- 小学校
- 中学校
- 都市計画
- 非線引
- 用途地域
- 無指定
- 最適用途
- 住宅用地
- 建ぺい率
- 70%
- 容積率
- 200%
- 地勢
- 平坦
- 地目
- 畑
- セットバック
- 不要
- 土地権利
- 所有権
- 国土法届出
- 不要
- 設備
- 水道公営 プロパンガス 浄化槽 側溝
- 備考
- 法令等制限: 農転要
引渡が2026年5~11月の場合、時期相談
- 現況
- 更地
- 引渡可能時期
- 即時
- 条件等
- 物件番号
- 53594048
- 情報公開日
- 2023/07/16
- 次回更新予定日
- 2026/01/10
伊勢崎市赤堀鹿島町周辺の地図
地図を見る※地図上に表示される家マークのアイコンは付近住所に所在することを表すものであり、実際の物件所在地とは異なる場合がございます。必ず不動産会社におたずねください。
情報提供会社

スリーワン・エステート
- 交通東武桐生線 / 赤城 徒歩 6分
- 住所〒376-0101 群馬県みどり市大間々町大間々559番地1テナント31大間々町2号
- TEL0277-47-6388
- FAX0277-47-6389
取引態様:専属専任媒介
群馬県知事免許(3) 第0007138号
所属協会:(公社)全日本不動産協会
公正取引協議会:不動産公正取引協議会
賃貸住宅を借りるなら、物件検索サイト「ラビーネット不動産」で。賃貸マンション・賃貸アパート・賃貸一戸建ての物件情報を住みたいエリア/沿線・駅から検索し、賃料/間取り/駅からの徒歩といった希望条件で絞り込むことができます。このほか、物件の探し方から契約、引越、入居時の手続まで、お部屋探しに役立つ情報が満載。このサイトは全国組織の業界団体である公益社団法人全日本不動産協会が運営する不動産情報サイトのため、安心して物件をお探しいただけます。住まい探しのことならラビーネット不動産にお任せください!