名張市赤目町柏原(赤目口駅)住宅用地印刷する
おすすめポイント
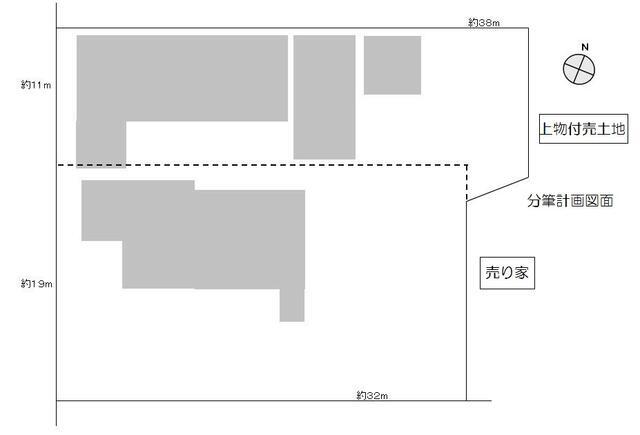
350万円 坪単価:3.47万円/坪 | 土地面積333.8㎡ 坪数100.97坪 私道負担面積 |
|
土地権利所有権 引渡条件現況渡し 最適用途住宅用地 | 建ぺい率60% 容積率200% |
|
所在地名張市赤目町柏原 |
|
| 交通 |
|
最新の空室状況や詳しい情報はこちらから!
お問合せ(無料)【お問合せ先】 (有)エムズエステート
スマートフォンでこの物件の情報をご覧になれます
※携帯電話ではご覧いただけません。
- 交通
近鉄大阪線 赤目口駅 徒歩9分
- 所在地
- 名張市赤目町柏原
- 物件種目
- 売買
- 価格
- 350万円
- 敷金 / 保証金
- なし /
- 坪単価
- 3.47万円/坪
- 借地期間
- 地代(月額)
- 権利金
- その他一時金
- 維持費等
- 土地面積
- 333.8㎡
- 坪数
- 100.97坪
- 私道負担面積
- 接道状況
- 西向き6m 公道 接面13m
- 小学校
- 中学校
- 都市計画
- 非線引
- 用途地域
- 無指定
- 最適用途
- 住宅用地
- 建ぺい率
- 60%
- 容積率
- 200%
- 地勢
- 平坦
- 地目
- 宅地
- セットバック
- 土地権利
- 所有権
- 国土法届出
- 設備
- プロパンガス 上水道 電気
- 備考
- *田舎暮らしや家庭菜園を楽しむ事ができます。
*上物付き売地ですがDIYを楽しむ事も出来ます。
*敷地面積は実測後登記しますが、増減が生じた場合でも
売買価格に変更はありません。
*各種配管の引込みが必要です。
- 現況
- 建物有
- 引渡可能時期
- 相談
- 条件等
- なし
- 物件番号
- 48127309
- 情報公開日
- 2024/09/15
- 次回更新予定日
- 2026/04/07
名張市赤目町柏原周辺の地図
地図を見る※地図上に表示される家マークのアイコンは付近住所に所在することを表すものであり、実際の物件所在地とは異なる場合がございます。必ず不動産会社におたずねください。
情報提供会社

- 交通近鉄大阪線 / 名張 徒歩 5分
- 住所〒518-0774 三重県名張市希央台4番町53番地
- TEL0595-62-2221
- FAX0595-62-2225
取引態様:専任媒介
三重県知事免許(6) 第0002711号
所属協会:(公社)全日本不動産協会
公正取引協議会:不動産公正取引協議会
積水ハウス・住友林業・パナホーム・ミサワホーム・大和ハウス・一条工務店提携店
スマートフォンで
この不動産会社の情報を
ご覧になれます
※携帯電話ではご覧いただけません。
賃貸住宅を借りるなら、物件検索サイト「ラビーネット不動産」で。賃貸マンション・賃貸アパート・賃貸一戸建ての物件情報を住みたいエリア/沿線・駅から検索し、賃料/間取り/駅からの徒歩といった希望条件で絞り込むことができます。このほか、物件の探し方から契約、引越、入居時の手続まで、お部屋探しに役立つ情報が満載。このサイトは全国組織の業界団体である公益社団法人全日本不動産協会が運営する不動産情報サイトのため、安心して物件をお探しいただけます。住まい探しのことならラビーネット不動産にお任せください!