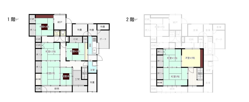
熱田町中古住宅物件画像数14周辺画像数0動画数0300万円間取7K建物面積壁芯 144.12㎡構造木造土地面積公簿 254.65㎡私道負担面積なし土地権利所有権物件種目戸建住宅築年月1963年2月14日(築62年10ヶ月)所在地浜田市熱田町交通JR山陰本線(米子~益田) 西浜田駅 石原 バス15分 徒歩1分不動産会社:えんどう不動産JR山陰本線 / 浜田 徒歩 10分お客様との御縁を大切にして、不動産売却や不動産探しのお手伝いをさせて頂きます詳細を見るとりあえず保存お問合せ(無料)