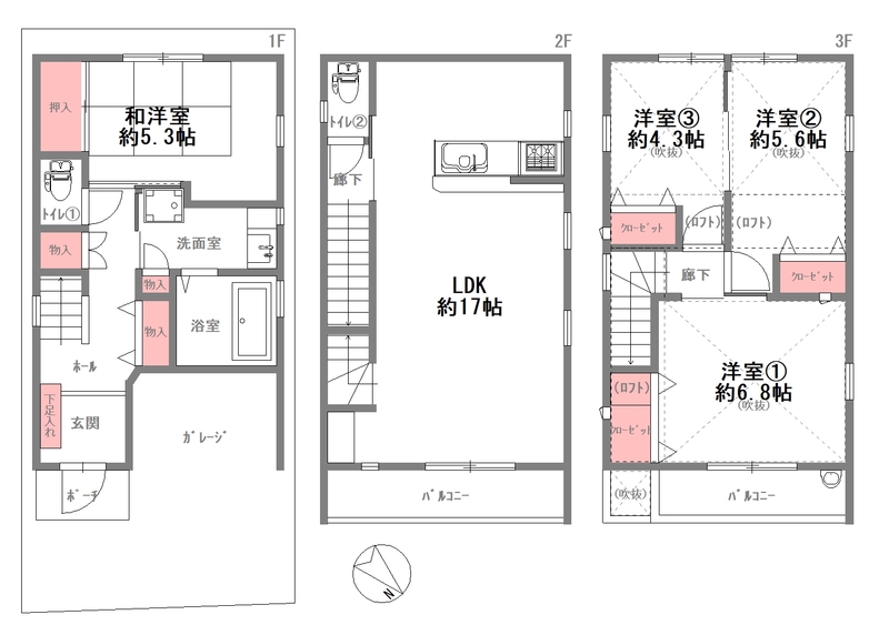
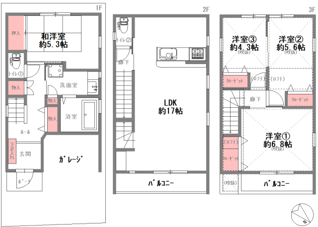
アイズタウン西淀川区柏里2丁目物件画像数16周辺画像数0動画数03,980万円間取3LDK建物面積壁芯 86.72㎡構造木造土地面積私道負担面積なし土地権利所有権物件種目戸建住宅築年月2025年12月(築0年0ヶ月)所在地大阪市西淀川区柏里2丁目交通JR神戸線(大阪~神戸) 塚本駅 徒歩6分不動産会社:(株)アイズ不動産 詳細を見るとりあえず保存お問合せ(無料)
出来島2丁目戸建物件画像数18周辺画像数0動画数03,580万円間取4LDK建物面積内芯 119.59㎡構造木造土地面積公簿 67.18㎡私道負担面積なし土地権利所有権物件種目戸建住宅築年月2007年2月9日(築18年10ヶ月)所在地大阪市西淀川区出来島2丁目交通阪神なんば線 出来島駅 徒歩3分不動産会社:レクセルライフ(株)阪神電鉄本線 / 姫島 徒歩 1分西淀川区中心に福島・此花・淀川区はお任せ下さい。詳細を見るとりあえず保存お問合せ(無料)
西淀川区姫里3丁目戸建て物件画像数10周辺画像数0動画数03,890万円間取4LDK建物面積壁芯 97.76㎡構造木造土地面積公簿 57.03㎡私道負担面積土地権利所有権物件種目戸建住宅築年月2006年1月(築19年11ヶ月)所在地大阪市西淀川区姫里3丁目交通JR東西線 御幣島駅 徒歩9分阪神本線 姫島駅 徒歩8分不動産会社:(株)あゆむ不動産JR東西線 / 新福島 徒歩 2分あせらず、ゆっくり、無理をせず、これからも皆様と共に一歩ずつ歩んでいきます。詳細を見るとりあえず保存お問合せ(無料)
大阪市西淀川区姫里3丁目物件画像数14周辺画像数0動画数03,890万円間取4LDK建物面積壁芯 97.76㎡構造木造土地面積私道負担面積2.26㎡ 共有持分 1/1土地権利所有権物件種目戸建住宅築年月2006年1月(築19年11ヶ月)所在地大阪市西淀川区姫里3丁目交通JR東西線 御幣島駅 徒歩9分不動産会社:日創住宅(株)大阪メトロ四つ橋線 / 肥後橋 徒歩 1分詳細を見るとりあえず保存お問合せ(無料)
JR東西線御幣島駅前徒歩7分!電動シャッター付戸建♪物件画像数12周辺画像数0動画数02,499万円間取4DK建物面積壁芯 94.17㎡構造鉄骨造土地面積私道負担面積89.79㎡ 共有持分 1/10土地権利所有権物件種目戸建住宅築年月1996年11月(築29年1ヶ月)所在地大阪市西淀川区野里2丁目交通JR東西線 御幣島駅 徒歩7分不動産会社:日創住宅(株)大阪メトロ四つ橋線 / 肥後橋 徒歩 1分詳細を見るとりあえず保存お問合せ(無料)