新保本モデル分譲物件画像数13周辺画像数0動画数03,697万円間取3LDK建物面積壁芯 113.44㎡構造木造土地面積公簿 153.96㎡私道負担面積なし土地権利所有権物件種目戸建住宅築年月2025年7月15日(築0年5ヶ月)所在地金沢市新保本1丁目交通不動産会社:スギモトホームズ(株) ハイクオリティ&ロープライス、お値段以上の家づくりを追求している会社です。詳細を見るとりあえず保存お問合せ(無料)
金沢市額新保三丁目 中古戸建物件画像数1周辺画像数0動画数03,980万円間取4LDK建物面積壁芯 122.56㎡構造木造土地面積公簿 179.6㎡私道負担面積土地権利所有権物件種目戸建住宅築年月2021年2月5日(築4年10ヶ月)所在地金沢市額新保3丁目交通北陸鉄道石川線 額住宅前駅 徒歩7分不動産会社:(株)ミライバンク 詳細を見るとりあえず保存お問合せ(無料)
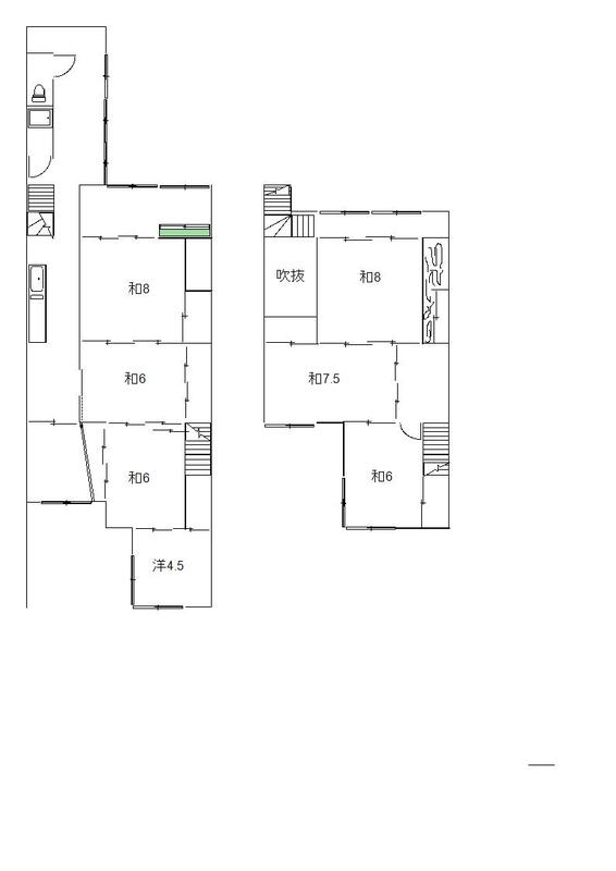
金沢市金石西 中古物件画像数12周辺画像数0動画数0690万円間取7K建物面積内芯 112.38㎡構造木造土地面積公簿 151.08㎡私道負担面積なし土地権利所有権物件種目戸建住宅築年月1962年1月上旬(築64年0ヶ月)所在地金沢市金石西1丁目交通不動産会社:(株)暮らしエステートJR北陸本線(米原~金沢) / 金沢 詳細を見るとりあえず保存お問合せ(無料)