NEW
柿崎区上下浜 中古住宅印刷するおすすめポイント8DK オール電化住宅。 上下浜海岸まで徒歩5分。 広いお庭が有り、家庭菜園が出来ます。
320万円 | 土地面積公簿 694.21㎡ 私道負担面積なし 土地権利所有権 |
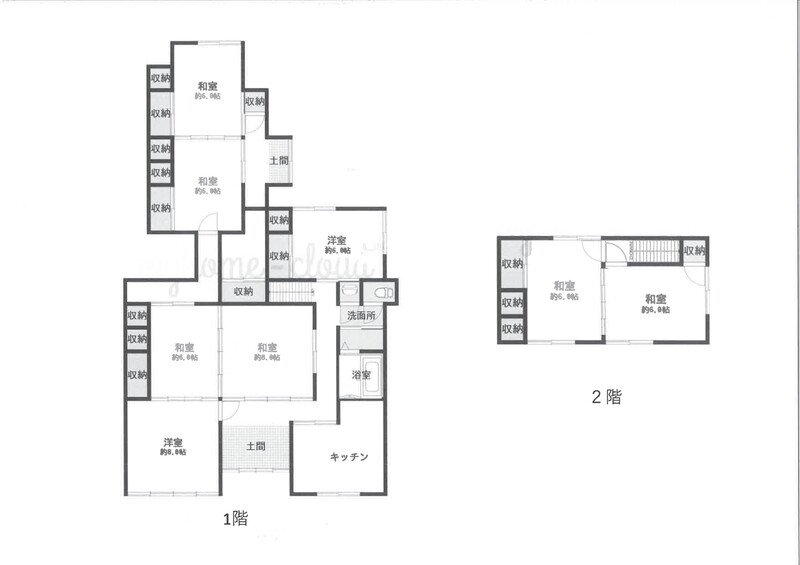
間取8DK 建物面積壁芯 155㎡ 構造木造 | 物件種目戸建住宅 築年月1970年7月15日(築55年8ヶ月) |
所在地上越市柿崎区上下浜 | |
| 交通 | |
NEW
柿崎区上下浜 中古住宅印刷するおすすめポイント8DK オール電化住宅。 上下浜海岸まで徒歩5分。 広いお庭が有り、家庭菜園が出来ます。
320万円 | 土地面積公簿 694.21㎡ 私道負担面積なし 土地権利所有権 |
間取8DK 建物面積壁芯 155㎡ 構造木造 | 物件種目戸建住宅 築年月1970年7月15日(築55年8ヶ月) |
所在地上越市柿崎区上下浜 | |
| 交通 | |
※地図上に表示される家マークのアイコンは付近住所に所在することを表すものであり、実際の物件所在地とは異なる場合がございます。必ず不動産会社におたずねください。
取引態様:一般媒介
新潟県知事免許(2) 第0005502号
所属協会:(公社)全日本不動産協会
公正取引協議会:不動産公正取引協議会
お気軽にご来店下さい!!
スマートフォンで
この不動産会社の情報を
ご覧になれます
※携帯電話ではご覧いただけません。
おすすめポイント8DK オール電化住宅。 上下浜海岸まで徒歩5分。 広いお庭が有り、家庭菜園が出来ます。
1 / 14
(025-543-9239)