岡山市中区海吉戸建 JR山陽本線(姫路~岡山) 岡山駅 海吉 バス35分 徒歩11分 岡山市中区海吉 | スマートフォンでこの物件の (※携帯電話ではご覧いただけません。) | ||
| 物件種目 | 戸建住宅 | ||
| 価格 | 1,850万円 | 敷金/保証金 | なし/ |
| 借地期間 | 地代(月額) | ||
| 権利金 | その他一時金 | ||
| 維持費等 | |||
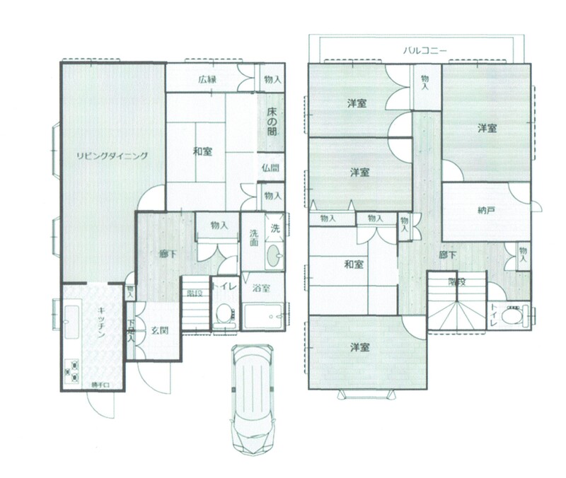
| 間取り(内訳) | 建物面積 | 内芯 151.72㎡ | |
| 土地面積 | 公簿 160.62㎡ | 私道負担面積 | なし |
| 築年月 | 1996年11月(築29年4ヶ月) | 階建 | 2階建 |
| 建物構造 | 軽量鉄骨 | 駐車場 | 空きあり |
| 接道状況 | 都市計画 | 市街化 | |
| 用途地域 | 準工業 | ||
| 建ぺい率 | 60% | 容積率 | 200% |
| 地勢 | 平坦 | 地目 | 宅地 |
| セットバック | 不要 | 土地権利 | 所有権 |
| 国土法届出 | 建築確認 | 第H08認建岡市001509号 | |
| 小学校 | 中学校 | ||
| 設備 | 都市ガス 排水下水 水道公営 | ||
| 建物状況調査 (インスペクション) | |||
| 備考 | 施工会社: 積水ハウス | ||
| 周辺環境 | |||
| 現況 | 空き | 引渡可能時期 | 相談 |
| 物件番号 | 63940485 | ||
| 情報公開日 | 2024/11/01 | 次回更新予定日 | 2026/04/22 |
情報提供会社 | |||
| エスワイホーム | スマートフォンでこの物件の (※携帯電話ではご覧いただけません。) | ||
交通:京阪電鉄本線 / 萱島 住所:〒700-0052 岡山県岡山市北区下伊福1丁目2-20 TEL:086-250-6713 FAX:086-250-6713 | |||
取引態様:専任媒介 岡山県知事免許(1) 第0006080号 所属協会:(公社)全日本不動産協会 公正取引協議会:不動産公正取引協議会 管理番号: 15278152 | |||
















