青葉台1丁目 一戸建て2棟一括印刷する
おすすめポイント
3,760万円 | 土地面積公簿 261.88㎡ 私道負担面積12.83㎡ 共有持分 1/1 土地権利所有権 |
|
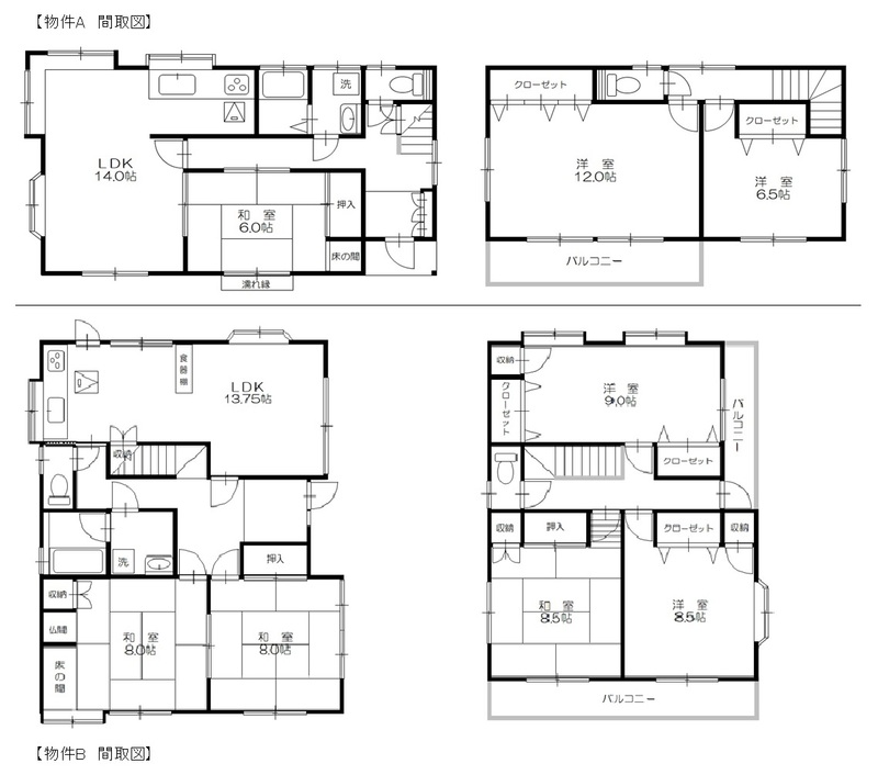
間取5LDK 建物面積壁芯 139.94㎡ 構造木造 | 物件種目戸建住宅 築年月1994年10月10日(築31年3ヶ月) |
|
所在地柏市青葉台1丁目 |
|
交通- JR常磐線(上野~取手) 南柏駅 酒井根入口 バス20分 徒歩3分
|
|
最新の空室状況や詳しい情報はこちらから!
お問合せ(無料)【お問合せ先】 (有)京葉地所
スマートフォンでこの物件の情報をご覧になれます
※携帯電話ではご覧いただけません。
- 交通
JR常磐線(上野~取手) 南柏駅 酒井根入口 バス20分 徒歩3分
- 所在地
- 柏市青葉台1丁目
- 物件種目
- 戸建住宅
- 価格
- 3,760万円
- 敷金 / 保証金
- なし /
- 借地期間
- 地代(月額)
- 権利金
- その他一時金
- 維持費等
- 間取り(内訳)
- 建物面積
- 壁芯 139.94㎡
- 土地面積
- 公簿 261.88㎡
- 私道負担面積
- 12.83㎡ 共有持分 1/1
- 築年月
- 1994年10月10日(築31年3ヶ月)
- 階建
- 2階建
- 建物構造
- 木造
- 駐車場
- 空きあり 無料/月
- 接道状況
- 小学校
- 中学校
- 都市計画
- 市街化
- 用途地域
- 1種住居
- 建ぺい率
- 60%
- 容積率
- 200%
- 地勢
- 地目
- 宅地
- セットバック
- 済 1.56㎡
- 土地権利
- 所有権
- 国土法届出
- 建築確認
- 設備
- プロパンガス 排水下水 水道公営
- 建物状況調査
(インスペクション)
- 備考
- 他所在地: 柏市青葉台1丁目26‐21
- 現況
- 空き
- 引渡可能時期
- 即時
- 物件番号
- 62118459
- 情報公開日
- 2024/07/27
- 次回更新予定日
- 2026/02/25
柏市青葉台1丁目周辺の地図
地図を見る※地図上に表示される家マークのアイコンは付近住所に所在することを表すものであり、実際の物件所在地とは異なる場合がございます。必ず不動産会社におたずねください。
情報提供会社

- 交通JR千代田・常磐緩行線 / 北松戸 徒歩 13分
- 住所〒271-0062 千葉県松戸市栄町4丁目205番地
- TEL047-702-3567
- FAX047-369-1171
取引態様:売主
千葉県知事免許(4) 第0015474号
所属協会:(公社)全日本不動産協会
公正取引協議会:不動産公正取引協議会
スマートフォンで
この不動産会社の情報を
ご覧になれます
※携帯電話ではご覧いただけません。
賃貸住宅を借りるなら、物件検索サイト「ラビーネット不動産」で。賃貸マンション・賃貸アパート・賃貸一戸建ての物件情報を住みたいエリア/沿線・駅から検索し、賃料/間取り/駅からの徒歩といった希望条件で絞り込むことができます。このほか、物件の探し方から契約、引越、入居時の手続まで、お部屋探しに役立つ情報が満載。このサイトは全国組織の業界団体である公益社団法人全日本不動産協会が運営する不動産情報サイトのため、安心して物件をお探しいただけます。住まい探しのことならラビーネット不動産にお任せください!