ホクセツ・メディカルモール A印刷する
おすすめポイント
34.1万円 管理費等:33,000円 | 敷金なし 礼金3ヶ月 保証金なし |
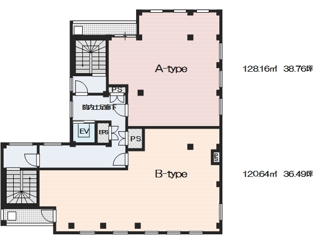
使用部分面積128.16㎡ 坪数38.76坪 坪単価0.8万円/坪/坪 | 物件種目店舗(一部) 駐車場空きあり |
所在地茨木市総持寺台 | |
交通
| |
おすすめポイント
34.1万円 管理費等:33,000円 | 敷金なし 礼金3ヶ月 保証金なし |
使用部分面積128.16㎡ 坪数38.76坪 坪単価0.8万円/坪/坪 | 物件種目店舗(一部) 駐車場空きあり |
所在地茨木市総持寺台 | |
交通
| |
阪急京都本線 総持寺駅 徒歩3分
※地図上に表示される家マークのアイコンは付近住所に所在することを表すものであり、実際の物件所在地とは異なる場合がございます。必ず不動産会社におたずねください。

取引態様:一般媒介
大阪府知事免許(3) 第0057821号
所属協会:(公社)全日本不動産協会
公正取引協議会:不動産公正取引協議会
スマートフォンで
この不動産会社の情報を
ご覧になれます
※携帯電話ではご覧いただけません。
1 / 12
阪急京都本線 総持寺駅 徒歩3分
(072-631-3510)