メインステージ池袋 406印刷する
おすすめポイント
9.2万円 管理費等:20,000円 | 敷金なし 礼金1ヶ月 保証金なし |
|
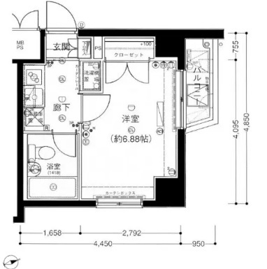
間取 面積21.58㎡ 構造鉄筋コンクリート | 物件種目マンション 階建/階地上10階, 地下1階建/ 築年月2000年8月(築25年8ヶ月) |
|
所在地豊島区池袋4丁目 |
|
| 交通 |
|
最新の空室状況や詳しい情報はこちらから!
お問合せ(無料)【お問合せ先】 (株)GTNコンシェルジュサービス
スマートフォンでこの物件の情報をご覧になれます
※携帯電話ではご覧いただけません。
- 交通
JR山手線 池袋駅 徒歩10分
- 所在地
- 豊島区池袋4丁目
- 物件種目
- マンション
- 賃料
- 9.2万円
- 管理費等
- 20,000円
- 敷金 / 保証金
- なし / なし
- 礼金
- 1ヶ月
- 敷引
- 保証金償却
- その他一時金
- 保険等
- 加入不要 /
- 間取り
- 専有面積
- 21.58㎡
- 築年月
- 2000年8月(築25年8ヶ月)
- 階建/階
- 地上10階, 地下1階建/
- 駐車場
- なし
- 建物構造
- 鉄筋コンクリート
- 建物名・部屋番号
- メインステージ池袋 406
- 主要採光面
- 北東向き
- 小学校
- 中学校
- 設備
- 都市ガス エレベーター 宅配BOX エアコン 収納スペース シューズボックス インターネット無料 オートロック 家具付き 冷蔵庫 ベッド バルコニー 敷地内ごみ置き場 外国籍可
- 建物状況調査
(インスペクション)
- 備考
- 賃貸保証等: 利用必須 指定会社 ・外国籍:フェアリース保証:初回保証料:賃料等の100%(最低30,000円)、月額3%(最低2,500円)+決済手数料330円
・日本国籍:エポスカード保証(初回保証料:賃料等の50%、月次保証料:月額総賃料の1.5%)
バルコニー: あり
- 災害時被災者
優先住宅 - ※内容の詳細はこちらをご覧ください。
- 契約期間
- 2年間
- 現況
- 居住中
- 条件等
- 入居可能時期
- 予定 2026年4月22日
- 更新料
- 物件番号
- 73309891
- 情報公開日
- 2026/03/24
- 次回更新予定日
- 2026/04/23
豊島区池袋4丁目周辺の地図
地図を見る※地図上に表示される家マークのアイコンは付近住所に所在することを表すものであり、実際の物件所在地とは異なる場合がございます。必ず不動産会社におたずねください。
情報提供会社

- 交通
- 住所〒169-0072 東京都新宿区大久保1丁目15-15AKIYAMA BLD.8階
- TEL03-6820-7130
- FAX03-5155-4679
取引態様:貸主
東京都知事免許(1) 第0112628号
所属協会:(公社)全日本不動産協会
公正取引協議会:不動産公正取引協議会
スマートフォンで
この不動産会社の情報を
ご覧になれます
※携帯電話ではご覧いただけません。
賃貸住宅を借りるなら、物件検索サイト「ラビーネット不動産」で。賃貸マンション・賃貸アパート・賃貸一戸建ての物件情報を住みたいエリア/沿線・駅から検索し、賃料/間取り/駅からの徒歩といった希望条件で絞り込むことができます。このほか、物件の探し方から契約、引越、入居時の手続まで、お部屋探しに役立つ情報が満載。このサイトは全国組織の業界団体である公益社団法人全日本不動産協会が運営する不動産情報サイトのため、安心して物件をお探しいただけます。住まい探しのことならラビーネット不動産にお任せください!