シャトレー大津A棟印刷する
おすすめポイント
11万円 管理費等:なし | 敷金1ヶ月 礼金なし 保証金なし |
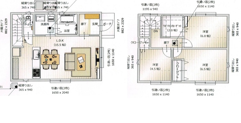
間取3SLDK 面積79.63㎡ 構造木造 | 物件種目戸建住宅 階建/階2階建/ 築年月2024年7月(築1年6ヶ月) |
所在地菊池郡大津町大字引水 | |
交通
| |
おすすめポイント
11万円 管理費等:なし | 敷金1ヶ月 礼金なし 保証金なし |
間取3SLDK 面積79.63㎡ 構造木造 | 物件種目戸建住宅 階建/階2階建/ 築年月2024年7月(築1年6ヶ月) |
所在地菊池郡大津町大字引水 | |
交通
| |
阿蘇高原線 肥後大津駅 徒歩15分
※地図上に表示される家マークのアイコンは付近住所に所在することを表すものであり、実際の物件所在地とは異なる場合がございます。必ず不動産会社におたずねください。

取引態様:一般媒介
熊本県知事免許(5) 第0004264号
所属協会:(公社)全日本不動産協会
公正取引協議会:不動産公正取引協議会
スマートフォンで
この不動産会社の情報を
ご覧になれます
※携帯電話ではご覧いただけません。
阿蘇高原線 肥後大津駅 徒歩15分
(096-232-8208)