NEW
中古マンション ♪グランフィーネ枚方長尾♪ 4階印刷するおすすめポイント当社オリジナルキャンペーン実施中!!
2,380万円 管理費等:8,560円/月 | 総戸数192戸 バルコニーあり 13.3㎡ |
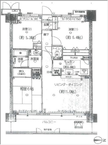
間取3LDK 専有面積壁芯 65.4㎡ 構造鉄骨鉄筋コンクリート | 物件種目マンション 階建/階地上11階, 地下1階建/4階 築年月1998年3月(築28年1ヶ月) |
所在地枚方市長尾谷町2丁目 | |
交通
| |
NEW
中古マンション ♪グランフィーネ枚方長尾♪ 4階印刷するおすすめポイント当社オリジナルキャンペーン実施中!!
2,380万円 管理費等:8,560円/月 | 総戸数192戸 バルコニーあり 13.3㎡ |
間取3LDK 専有面積壁芯 65.4㎡ 構造鉄骨鉄筋コンクリート | 物件種目マンション 階建/階地上11階, 地下1階建/4階 築年月1998年3月(築28年1ヶ月) |
所在地枚方市長尾谷町2丁目 | |
交通
| |
学研都市線 長尾駅 徒歩15分
※地図上に表示される家マークのアイコンは付近住所に所在することを表すものであり、実際の物件所在地とは異なる場合がございます。必ず不動産会社におたずねください。

取引態様:仲介
大阪府知事免許(3) 第0055801号
所属協会:(公社)全日本不動産協会
公正取引協議会:不動産公正取引協議会
地域密着・信頼と安心
スマートフォンで
この不動産会社の情報を
ご覧になれます
※携帯電話ではご覧いただけません。
おすすめポイント当社オリジナルキャンペーン実施中!!
1 / 2
学研都市線 長尾駅 徒歩15分
(072-809-5550)