秦野市曽屋(秦野駅)住宅用地印刷する
おすすめポイント
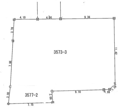
1,980万円 坪単価:27.36万円/坪 | 土地面積239.31㎡ 坪数72.39坪 私道負担面積118㎡ 共有持分 1/4 |
|
土地権利所有権 引渡条件現況渡し 最適用途住宅用地 | 建ぺい率50% 容積率100% |
|
所在地秦野市曽屋 |
|
交通- 小田急線 秦野駅 末広小学校前 バス5分 徒歩7分
|
|
最新の空室状況や詳しい情報はこちらから!
お問合せ(無料)【お問合せ先】 LDK不動産(株)
スマートフォンでこの物件の情報をご覧になれます
※携帯電話ではご覧いただけません。
- 交通
小田急線 秦野駅 末広小学校前 バス5分 徒歩7分
- 所在地
- 秦野市曽屋
- 物件種目
- 売買
- 価格
- 1,980万円
- 敷金 / 保証金
- なし /
- 坪単価
- 27.36万円/坪
- 借地期間
- 地代(月額)
- 権利金
- その他一時金
- 維持費等
- 土地面積
- 239.31㎡
- 坪数
- 72.39坪
- 私道負担面積
- 118㎡ 共有持分 1/4
- 接道状況
- 北向き4m 私道 接面4m 位置指定あり
- 小学校
- 中学校
- 都市計画
- 市街化
- 用途地域
- 1種低層
- 最適用途
- 住宅用地
- 建ぺい率
- 50%
- 容積率
- 100%
- 地勢
- 平坦
- 地目
- 宅地
- セットバック
- 不要
- 土地権利
- 所有権
- 国土法届出
- 不要
- 設備
- 水道公営 プロパンガス 排水下水 上水道
- 備考
- 現況
- 更地
- 引渡可能時期
- 即時
- 条件等
- なし
- 物件番号
- 65951666
- 情報公開日
- 2025/02/20
- 次回更新予定日
- 2026/03/07
秦野市曽屋周辺の地図
地図を見る※地図上に表示される家マークのアイコンは付近住所に所在することを表すものであり、実際の物件所在地とは異なる場合がございます。必ず不動産会社におたずねください。
情報提供会社

- 交通JR東海道本線 / 平塚 徒歩 10分
- 住所〒254-0052 神奈川県平塚市平塚1丁目17-17
- TEL0463-35-0515
- FAX0463-68-3327
取引態様:専任媒介
神奈川県知事免許(1) 第0032441号
所属協会:(公社)全日本不動産協会
公正取引協議会:不動産公正取引協議会
スマートフォンで
この不動産会社の情報を
ご覧になれます
※携帯電話ではご覧いただけません。
賃貸住宅を借りるなら、物件検索サイト「ラビーネット不動産」で。賃貸マンション・賃貸アパート・賃貸一戸建ての物件情報を住みたいエリア/沿線・駅から検索し、賃料/間取り/駅からの徒歩といった希望条件で絞り込むことができます。このほか、物件の探し方から契約、引越、入居時の手続まで、お部屋探しに役立つ情報が満載。このサイトは全国組織の業界団体である公益社団法人全日本不動産協会が運営する不動産情報サイトのため、安心して物件をお探しいただけます。住まい探しのことならラビーネット不動産にお任せください!