札幌市豊平区福住一条3丁目(福住駅)マンション用地印刷する
おすすめポイント
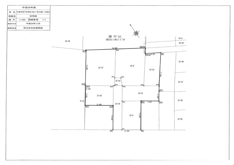
17,520万円 坪単価:60.03万円/坪 | 土地面積964.93㎡ 坪数291.89坪 私道負担面積なし |
土地権利所有権 引渡条件現況渡し 最適用途マンション用地 | 建ぺい率60% 容積率200% |
所在地札幌市豊平区福住一条3丁目 | |
交通
| |
おすすめポイント
17,520万円 坪単価:60.03万円/坪 | 土地面積964.93㎡ 坪数291.89坪 私道負担面積なし |
土地権利所有権 引渡条件現況渡し 最適用途マンション用地 | 建ぺい率60% 容積率200% |
所在地札幌市豊平区福住一条3丁目 | |
交通
| |
札幌市営地下鉄東豊線 福住駅 徒歩11分
※地図上に表示される家マークのアイコンは付近住所に所在することを表すものであり、実際の物件所在地とは異なる場合がございます。必ず不動産会社におたずねください。

取引態様:一般媒介
北海道知事免許 石狩(4)第0007354号
所属協会:(公社)全日本不動産協会
公正取引協議会:不動産公正取引協議会
スマートフォンで
この不動産会社の情報を
ご覧になれます
※携帯電話ではご覧いただけません。
1 / 2
札幌市営地下鉄東豊線 福住駅 徒歩11分
(011-513-0037)